CASA LIMÃO
"Ao escolher a PERELOPES, para projetar a minha casa, me encantei logo de inicio com a forma de abordagem , bem didática e minuciosa que foi usada para captar os nossos desejos e necessidades para compor os nossos ambientes.
Concluíram rápido com opções e sugestões, e propostas bem próximas do que sonhávamos., e em seguida , de forma inteligente conseguiram reunir o aconchego e a sofisticação, o moderno e o imponente em um só projeto. Respeitando sempre as nossas exigências. Enfim , Renato e Danny, receberam nossas ideias soltas e a descrição do estilo de vida e materializaram uma residencia ampla , clara , recheada de verde e bem estar."
Liliane e Edvaldo
Palmas - Tocantins

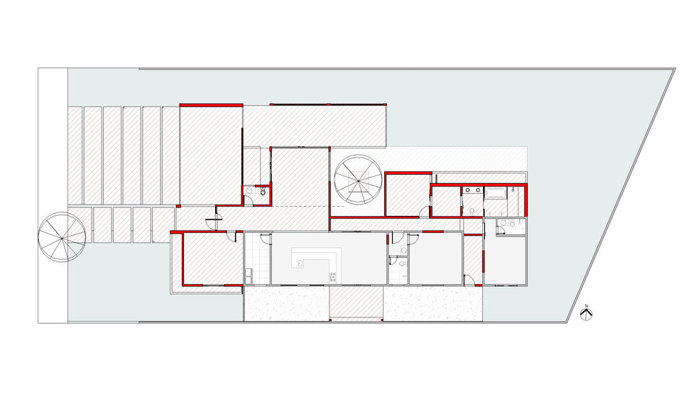
A casa limão é um projeto de reforma e ampliação. Ela vem da ideia dos clientes de ampliar a casa já existente, já que a casa atual tem bastante vidro e acesso visual fácil para a rua, o que incomoda os clientes que se sentem sem privacidade.
Na ampliação consta uma suíte master (banheiro e closet), onde propomos um banheiro aberto para um jardim íntimo, criando assim um espaço mais relaxante perto da banheira. Temos também uma sala de estar e jantar que não tem na casa existente, esses dois ambientes também se abrem para um pátio interno e uma varanda bem espaçosa que se une a esses ambientes tornando um só. E por ultimo um escritório/ateliê, um lavabo e garagem para 3 carros.
Usamos de cobogós para conseguirmos a privacidade para o interior mas com esses elementos conseguimos também a passagem dos ventos por dentro da residência deixando os ambientes mais agradáveis.
Uma das nossas dificuldades era em relação os materiais a serem utilizados já que a casa existente é toda construída com tijolinhos rústicos e os clientes não queriam a parte ampliada com os mesmos materiais. Acabou que as paredes de tijolinhos deram um charme para a parte ampliada e valorizou ainda mais os ambiente.
Na área social ampliada utilizamos de aberturas altas próximas ao forro para melhorar ainda mais no conforto térmico. E para proteger essas aberturas os brises de metalon na horizontal fez toda a diferença.
Ano: 2019
Local: Palmas - TO
Status: Em construção
Projetista: Renato Perelopes/
Danielly Daudt
Área do lote: 1002,00 m²
Área casa existente: 108,69 m²
Área de ampliação: 226,43 m²
Área Construída total: 335,12 m²


Fotos existente




















